THE BASE, THE VASE AND THE BOUQUET 2010
NJ TRANSIT ATLANTIC CITY LINE, PENNSAUKEN, NJ
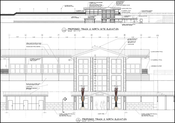
This proposal was for a new station being added to the Atlantic City/Philadelphia Line by NJ Transit and adjacent to a River Line station.
Because the architectural intent for the Pennsauken station directly reflects the aesthetics of the River Line,
we designed artwork that also reflects the aesthetics of the River Line,
as well as the artwork on the River Line. We addressed the front of the building as a prime area for sculpture.
It is also an area that is void of landscaping, other than grass. With all these circumstances in mind,
we decided to create a set of sculptural planters that contain “arrangements” consisting of grasses, wild rice,
and red winged blackbirds reflective of area plant and bird life. These images are also seen along the River Line.
This “bouquet” would be housed in a ferro concrete vase with cast egrets on each side, directly reflecting the egret finials on the River Line.

FRONT ELEVATION

FRONT VIEW
< BACK >
These are sculptures in three parts.
The bottom part is the base. The preliminary dimensions are 38” high and 16” square at the bottom. It tapers to a 12” square at the top.
It is made of cast aluminum and has a low relief checkered pattern separated by raised vertical lines to accentuate the sculptures overall verticality.
Each side will be designed as cladding, approximately ¾” thick. The cladding panels will be mechanically installed over a steel armature with security screws,
which will be located in each unit so to become integral to the design. The armature will extend up through the middle of the vase, which is the middle section.
The preliminary vase dimensions are 36” high. It is oval in shape and will be about 24” (36” with the egrets) wide and 14” deep.
It will continue the checkered pattern of the aluminum base using 1” square porcelain body tile in blues reflective of tile colors seen on the River Rail
and reds to compliment the black bird wings. Protruding from each side will be profiles of cast aluminum egrets.
The top section or the “bouquet” will be made of metal plant life that will be seen as tall grasses and wild rice.
The metal will be weathering steel (known to some as cor-ten steel), which ages to a natural, self-sealing, rusty patina.
It was chosen, in part, to compliment the rusty rail bridge linking Pennsauken and Philadelphia. The wild rice tops will be forged and welded and attached to ½” rods.
Cast aluminum red winged blackbirds will “fly” among the grasses and rice. They will also be attached to ½” rod.
They will have a blackened patina. They will also have red and yellow added to their distinctive wings. They are commonly seen in grassy habitats in this vicinity,
near the banks of the Delaware River. The grasses, wild rice, and birds will extend about 6-8’ and flare upward like a bouquet.
They will attach to a metal armature that will fit inside the armature of the vase.

SIDE ELEVATION

THREE VIEWS OF A COMPLETED SCULPTURE